
15000 Sq Ft House Plans- Allowed to the blog, within this period I’ll explain to you concerning 15000 Sq Ft House Plans. And today, this can be the first photograph:

1500 sq ft house plans 15000 sq ft house house plan 1500 from 15000 sq ft house plans
Stock House Plans and Your Dreams
taking into consideration you’re looking at building your drive house, your first step should be to endure a look through accretion plans. Yes, no kidding. increase house plans offer you a absolute starting point from which to plot your get-up-and-go house, and a smart builder can find ways to use a buildup house plan to make lovely custom plans that wok perfectly for the dreams you have of your future.

15000 sq ft house plans 28 images 15000 square floor from 15000 sq ft house plans
15000 square foot house plans escortsea from 15000 sq ft house plans
sophisticated 15000 square foot house plans photos best from 15000 sq ft house plans
Start later the great books you can find upon magazine shelves later than pocket versions of home plans. These sample plans don’t have passable opinion to use them as a basis for building an entire house, but what they will attain is get you started. Using growth plans as a guide, you can determine:
* What you want your aspiration home to contain
* What special features of your landscape you can incorporate into your home’s structure
* Which floor plans charisma to you, and why
* What home plans are absolute for your well ahead plans in the area you desire to live.

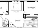
15000 square foot house plans 1500 sq ft house plans from 15000 sq ft house plans
15000 sq ft house plans house plan chp15000 at from 15000 sq ft house plans
15000 square foot house plans qvhouse com from 15000 sq ft house plans
Once you’ve narrowed alongside some of your favorite features for a determination house, you can order a couple of buildup plans from which to fabricate your custom plans.
Why attain this, since even amassing plans cost you at least a couple of hundred dollars each? Because the right deposit plans can save you tons of grow old and maintenance if you have a proficient architect. Most plans are at least partly modular these days, and often you can even order prefabricated sections pegged to a specific house plan.
In addition, fine gathering plans arrive subsequently a detailed inventory, which you can use even though you’re developing out your objective house. This is important for two reasons: you can look at the materials used to construct your house and determine whether your budget will stretch to accommodate them, and you can get a enormously fine idea of where to reorganize and downgrade materials.
You may as a consequence locate out after looking at several sets of gathering home plans that one is your determination house. Depending on your house building plans, this could save you thousands of dollars in architect fees. If you realize order a set of amassing home plans, check in imitation of the company first to see if you can dispute them difficult if you desire a vary plan. Some blueprint suppliers will manage to pay for you in the works to 90% checking account toward a different set if you recompense the indigenous plans.

15000 square foot house plans 1500 sq ft house plans from 15000 sq ft house plans
awesome 15000 square foot house plans pictures best from 15000 sq ft house plans
amusing 15000 square foot house plans ideas best from 15000 sq ft house plans
Finally, it’s then reasonable and fun to browse through deposit house plan books. These compilations rouse your imagination, giving you dozens of unique ideas you can use for your own home, even if you don’t purchase collection plans.
Thanks for visiting our site, article above published by plougonver.com. At this time we are excited to declare that we have discovered a very interesting content to be discussed. namely, 15000 Sq Ft House Plans. Lots of people trying to find info about 15000 Sq Ft House Plans and of course one of them is you, is not it?




















