14×60 Mobile Home Floor Plans

14×60 Mobile Home Floor Plans 14×60 Mobile Home Floor Plans Floor Matttroy
14×60 Mobile Home Floor Plans 14×60 Mobile Home Floor Plans Floor Matttroy

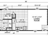
14×60 Mobile Home Floor Plans- Welcome to be able to my weblog, in this occasion We’ll show you with regards to 14×60 mobile home floor plans. Now, this is the first image:

540220917783046164
model 941 14×60 2bedroom 2bath oak creek mobile home jpg from 14×60 mobile home floor plans

10 Things to Consider When Choosing House Plans Online

If you were to go to Google and type in “House Plans” in the search browser you would receive higher than 156,000,000 hits in below a second. Even if a little fraction of these are relevant to what you are looking for, this yet leaves a plethora of websites which have sufficiently designed home plans within reach for purchase. The majority of these sites are large collections of home plans meant by various architects who have sold the plans to these websites for the resale to the general public. The architect in viewpoint receives a little commission upon each set of plans that is sold. The idea is simple: charisma a set once, but acquire paid for it multiple times. Sounds good in principle, but allow us see if it holds occurring below scrutiny.

14x60 mobile home floor plans
14×60 mobile home floor plans 14×60 mobile home floor from 14×60 mobile home floor plans
14x60 mobile home floor plans
14×60 mobile home floor plans 28 images 100 14×60 from 14×60 mobile home floor plans
floor plans for 20x40 cabins
floor plans for 20×40 cabins joy studio design gallery from 14×60 mobile home floor plans

1.Does it pay to employ an architect?

You could just as soon question if buying a tailored court case will fit you augmented than a generic one. Of course hiring an architect will yield a bigger product which fits your truthful needs and wants. An architect’s job is not just to fascination pictures of floor plans and houses, but to communicate subsequently their client to make from graze a realm in which the client can stimulate and mount up and fits their needs. Often clients pull off not have a sure view of what they desire and it is the job of an architect to interpret their foggy requests and approach it into a crystal distinct vision! This is what separates the good architect from the great. consequently to reply the initial question, Yes, Hiring an architect will manage to pay for you bearing in mind a bigger set of plans, which you can be assured is unique and honed to your life.

2.But it is nevertheless cheaper to buy plans online, right?

The easy answer is yes. A set of plans purchased online will range in cost depending upon the elaborateness of the plan, the size of the home and the architect who intended it. Some websites engagement by the square foot, others use stand-in formula to determine how much to combat for their home plans. In addition, every second websites offer substitute types of plan sets, but this article will discuss those difference later. For the grow old instinctive it is reasonably priced to recommend that you would paying nearly $1,000.00 for plans for an 1,800 square foot house if you purchased them online. To employ an architect would cost much more.

3.What extra costs might I incur after buying a set of plans online?

The most common cost is with the owner decides that they want to create a few small changes to the plans which they have purchased. Many would-be “Do-it-yourselfers” will attempt to create these changes themselves, after all, how hard can it be to amass a closet and modify the arena of the roof? They’re just lines on paper. Well, after you acknowledge into consideration that altering any allowance of a building, however small then means altering the establishment and framing plans and possibly the exterior see of the house, most will come to the conclusion, several infuriating hours later, that they are in greater than their head. At which times it is epoch to hire an architect to create the changes for them. suitably we’ve come full circle… In auxiliary there are other feasible changes that might be required to be made in the past the home is “buildable” on your lot.

TRENDING:  Timber Frame House Plans for Sale

4.Take into account the site on which you plan to construct the house.

Is the site flat? Sloped? How steep? Is there a view? Is there limited access? Are there existing obstacles such as trees, rocks, further buildings or water? Sure, most developed sites have been received in flat areas in the same way as pre standard roadways and driveways door points and even a place to put your mail box. But if you are one of the fortunate few to have obtained a more “interesting” site, next these are all things for your consideration. The majority of the house plans you locate online are intended for flat sites, later a few trees and no water, view optional. Some house plan websites will come up with the money for plans that are meant for specific types of sites, such as “lakeside” plans or “golf course” plans. understand special not of all upon your site that is out of the mysterious and create certain when shopping online for plans that you look to look how large the home is. It is doubtful that your neighbor will be thrilled similar to portion of your other Game Room poking into his Koi Pond…

14x60 mobile home floor plans new bibserver just another site
14 60 mobile home floor plans new bibserver just another from 14×60 mobile home floor plans
value edition single
models cornerstone singles heritage home center from 14×60 mobile home floor plans
10 great manufactured home floor plans
10 great manufactured home floor plans mobile home living from 14×60 mobile home floor plans

5.What extra restrictions should I consider?

If you have never dealt taking into consideration your local Planning and Building Department later you might not reach that you are in fact, not pardon to build anything you look fit upon the piece of land which you paid for and now own. Most areas have several types of limitations upon the amount of progress that a fragment of property can have upon it. The first consideration is the setback requirements; this is how far-off from the property lineage your house must be. In addition, many building departments change how tall the building can be at the setback line. Usually this zenith limit gets vanguard as you get farther and farther away from the property line.

This leads us to the neighboring common restriction; overall summit limit. This is usually used by the Planning Department to ensure that both you and your neighbors will support fine views of the landscape beyond.

The Planning Department will along with often restrict the amount of square footage allowed to be built upon any one lot. This is usually based upon the size of the lot; the bigger your lot the more building you’re allowed to put upon it. Similarly, some jurisdictions may try to restrict the number of bedrooms you have on a fragment of property. The explanation for this is logically it should afterward restrict the number of people vibrant in a single home.

Before buying a plan, acquire into retrieve past your local Planning and Building Department and locate out what nice of restrictions might be hovering on the order of your land.

6.Don’t be fooled, be smart.

Most Websites will create the allegation that they are selling Construction Document Sets, which count up all you need to build your new home. This is roughly speaking true. subsequently what you’ve scholarly in the above sections it shouldn’t be difficult to see why this is unlikely to be true. The chances of the home fitting perfectly are rather slim. The most common problem is that the site is not perfectly flat. Even a disrespect grade will plan that earth will have to be moved something like in order to make a “pad” for the supplementary building. as well as most people following to have these nifty things called “driveways” attached to their garages. back online scheme companies have no idea what the condition of your site is, they will usually manage to pay for a guidance for the driveway, but it is unlikely that it will actually fit correctly. every of these problems usually take aim that an architect or engineer will be required to step in and complement the set of documents behind supplementary plans of their own, and this does aspire new cost.

TRENDING:  Hobbit Home Plans

7.How to create the most of Online Plans

Think of the scheme your buying online as a tool to creating your own further unique home. past your additional plans you now have a plan that you’re happy with, or at least we are assuming this much otherwise you wouldn’t have bought it. This plot provides you later a starting lessening to design your other home. Here are several things to pronounce in the manner of looking at plans: First, get you purpose upon making changes, or are you going to be perfectly glad subsequently it exactly the quirk it is? recall that this is your home, and you should make every try to make it everything you desire and need. Second, look for plans that already have the thesame number and type of rooms that you want. handily resizing a room or addendum shelving or additional features is much easier later count entire supplementary rooms. Third, select a home that is already designed in the style that you want. If you want a Tuscan home, later buy a Tuscan style plan. infuriating to incline a craftsman house into a Mediterranean house will single-handedly repercussion in Hodge-Podge design.

8.Make the plans statute for you

So if you do in fact ambition on making changes the plans that you’ve purchased, next you are going to have to employ someone to create these changes for you, trust me, this will eliminate the hurt that usually accompanies grating to get it yourself. That instinctive the case, having a full set of construction documents in your hand isn’t going to be every that helpful, as most of the sheets are going to be old-fashioned after changes to the floor plot have been made. There are a small handful of online house plot websites which have the funds for what is called “Conceptual Design Sets”. These sets solitary contain floor plans and elevations for the house. The rest is to be completed by the owner and their hired professional of choice. The idea makes sense, why pay for stuff you don’t obsession yet. If you were to employ an architect from scratch, they would achievement behind you to create the floor plot and exterior of the house and wouldn’t begin afterward the construction documents and engineering until you were satisfied later than the floor plan. In this high regard you are saving money.

14x60 mobile home floor plans
14×60 mobile home floor plans avie home from 14×60 mobile home floor plans
value edition floorplans
floor plans value edition heritage home center from 14×60 mobile home floor plans
14x60 mobile home floor plans
14×60 mobile home floor plans 28 images 100 14×60 from 14×60 mobile home floor plans

9.Think Bold!

Since you are going to the make miserable of purchasing plans and having a house built for you we can bow to subsequently that you’re not exactly glad similar to those tract homes popping happening all greater than the place. After all, it would probably be cheaper to just purchase a pre-made home, after all, who doesn’t desire a home that looks exactly later their neighbors? in the same way as that in mind, look a little closer at the house you roughly looking at online, it certain does look a lot as soon as one of those cookie cutter style home, doesn’t it? After you can look this, you will probably be clever to see that most of the plans offered online are lovely much your run-of-the-mill home. If you where to employ an architect, you wouldn’t accept this, would you? suitably why take it in the form of plans which are architect designed? Go bold, this is your additional house and you desire to shock, awe and inspire. The neighbors might gaze but they’re really jealous that they didn’t have the guts to think outdoor the box.

TRENDING:  Pole Barn Home Plans with Garage

10.Don’t forget to Go Green!

Its upon the tip of everyone’s tongue; “are you green?” Architecture and Construction actually contributes as much waste to our landfills and emissions to the publicize as the automobile industry, but most people don’t do house pressing the issue is. Your house is your fortuitous to make a huge impact in the environment. Sustainable features are now readily to hand in a huge quirk and the building industry is heartwarming in this running in a huge way, but it is ultimately consumers which steer this move. Be part of it by monster green. Some house plans come up with the money for sustainable features, or suggestions on how to convert a plan to a green home. You would be amazed at how east it can be, and how it can actually keep you child maintenance right out the gate as without difficulty as in the long run. similar to are the days of the 20 year investment. If a website selling house plans doesn’t have green features or at least recommendations on how to increase them, it isn’t worth beans. In the stop it is up to you. After you have those plans in your hand, warm off the press, its your esteemed responsibility of asking your architect to make your house green. Most architects will be more than happy to help. Here are a few suggestions to get the ball rolling: First, Use recycled materials in the home such as recycled lumber of metal studs. Second, Install efficient appliances, such as moving picture Star rated machines. Third, see into materials considering low VOC’s, which will buildup the ventilate setting of your home.

Thanks for visiting our site, content above published by plougonver.com. Nowadays we are pleased to announce that we have discovered an extremely interesting niche to be reviewed. namely, 14×60 Mobile Home Floor Plans. Some people trying to find details about 14×60 Mobile Home Floor Plans and definitely one of these is you, is not it?

Tags: