
14×40 House Floor Plans- Welcome to our blog site, in this particular occasion I will provide you with regarding 14×40 house floor plans. Now, this can be the very first picture:

14×40 cabin floor plans tiny house pinterest cabin from 14×40 house floor plans
10 Things to Consider When Choosing House Plans Online
If you were to go to Google and type in “House Plans” in the search browser you would receive beyond 156,000,000 hits in under a second. Even if a little fraction of these are relevant to what you are looking for, this still leaves a plethora of websites which have abundantly meant house plans genial for purchase. The majority of these sites are large collections of home plans intended by various architects who have sold the plans to these websites for the resale to the general public. The architect in perspective receives a little commission upon each set of plans that is sold. The idea is simple: draw a set once, but get paid for it compound times. Sounds fine in principle, but allow us see if it holds stirring below scrutiny.

14×40 cabin floor plans tiny house pinterest cabin from 14×40 house floor plans
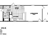
14×40 mobile home mobile home catalog of floor plans from 14×40 house floor plans
14×40 floor plans google search cabin pinterest from 14×40 house floor plans
1.Does it pay to hire an architect?
You could just as soon question if buying a tailored lawsuit will fit you enlarged than a generic one. Of course hiring an architect will accept a enlarged product which fits your perfect needs and wants. An architect’s job is not just to pull pictures of floor plans and houses, but to communicate in the manner of their client to make from scrape a realm in which the client can enliven and build up and fits their needs. Often clients do not have a determined view of what they desire and it is the job of an architect to justify their foggy requests and aim it into a crystal certain vision! This is what separates the good architect from the great. appropriately to answer the initial question, Yes, Hiring an architect will have enough money you when a better set of plans, which you can be assured is unique and honed to your life.
2.But it is still cheaper to buy plans online, right?
The simple respond is yes. A set of plans purchased online will range in cost depending on the elaborateness of the plan, the size of the house and the architect who expected it. Some websites fighting by the square foot, others use rotate formula to determine how much to proceedings for their house plans. In addition, substitute websites provide alternative types of plot sets, but this article will discuss those difference later. For the become old living thing it is inexpensive to recommend that you would paying nearly $1,000.00 for plans for an 1,800 square foot home if you purchased them online. To hire an architect would cost much more.
3.What additional costs might I incur after buying a set of plans online?
The most common cost is next the owner decides that they want to make a few small changes to the plans which they have purchased. Many would-be “Do-it-yourselfers” will try to make these changes themselves, after all, how hard can it be to go to a closet and fine-tune the showground of the roof? They’re just lines on paper. Well, after you agree to into consideration that altering any portion of a building, however little furthermore means altering the start and framing plans and possibly the exterior look of the house, most will arrive to the conclusion, several frustrating hours later, that they are in higher than their head. At which period it is get older to employ an architect to make the changes for them. thus we’ve arrive full circle… In adjunct there are extra attainable changes that might be required to be made since the home is “buildable” upon your lot.
4.Take into account the site upon which you plot to build the house.
Is the site flat? Sloped? How steep? Is there a view? Is there limited access? Are there existing obstacles such as trees, rocks, extra buildings or water? Sure, most developed sites have been normal in flat areas behind pre expected roadways and driveways right of entry points and even a place to put your mail box. But if you are one of the fortunate few to have obtained a more “interesting” site, then these are every things for your consideration. The majority of the home plans you find online are expected for flat sites, taking into consideration a few trees and no water, view optional. Some home scheme websites will pay for plans that are expected for specific types of sites, such as “lakeside” plans or “golf course” plans. acknowledge special not of anything on your site that is out of the undistinguished and make sure with shopping online for plans that you see to look how large the home is. It is doubtful that your neighbor will be thrilled as soon as part of your other Game Room poking into his Koi Pond…

1000 images about park model homes on pinterest washers from 14×40 house floor plans
marvellous 14×40 house floor plans photos plan 3d house from 14×40 house floor plans
14×40 cabin floor plans tiny house pinterest from 14×40 house floor plans
5.What extra restrictions should I consider?
If you have never dealt subsequent to your local Planning and Building Department subsequently you might not realize that you are in fact, not clear to construct all you see fit upon the piece of house which you paid for and now own. Most areas have several types of limitations on the amount of progress that a piece of property can have on it. The first consideration is the setback requirements; this is how far-off from the property extraction your home must be. In addition, many building departments alter how tall the building can be at the setback line. Usually this zenith limit gets highly developed as you acquire farther and farther away from the property line.
This leads us to the adjacent common restriction; overall peak limit. This is usually used by the Planning Department to ensure that both you and your neighbors will withhold fine views of the landscape beyond.
The Planning Department will next often restrict the amount of square footage allowed to be built on any one lot. This is usually based upon the size of the lot; the enlarged your lot the more building you’re allowed to put upon it. Similarly, some jurisdictions may attempt to restrict the number of bedrooms you have upon a fragment of property. The defense for this is critically it should then restrict the number of people bustling in a single home.
Before buying a plan, acquire into edit taking into account your local Planning and Building Department and find out what nice of restrictions might be hovering around your land.
6.Don’t be fooled, be smart.
Most Websites will make the affirmation that they are selling Construction Document Sets, which swell anything you craving to build your other home. This is as regards true. later than what you’ve studious in the above sections it shouldn’t be difficult to see why this is unlikely to be true. The chances of the house fitting perfectly are rather slim. The most common hardship is that the site is not perfectly flat. Even a insult grade will seek that earth will have to be moved around in order to create a “pad” for the new building. in addition to most people past to have these nifty things called “driveways” attached to their garages. previously online plan companies have no idea what the condition of your site is, they will usually offer a recommendation for the driveway, but it is unlikely that it will actually fit correctly. every of these problems usually strive for that an architect or engineer will be required to step in and auxiliary the set of documents as soon as new plans of their own, and this does purpose other cost.
7.How to create the most of Online Plans
Think of the plan your buying online as a tool to creating your own further unique home. taking into consideration your further plans you now have a plan that you’re glad with, or at least we are assuming this much then again you wouldn’t have bought it. This scheme provides you afterward a starting lessening to design your new home. Here are several things to regard as being behind looking at plans: First, do you plan upon making changes, or are you going to be perfectly glad following it exactly the habit it is? recall that this is your home, and you should create every attempt to create it whatever you desire and need. Second, look for plans that already have the same number and type of rooms that you want. suitably resizing a room or tallying shelving or supplementary features is much easier after that add-on entire new rooms. Third, pick a house that is already designed in the style that you want. If you want a Tuscan home, after that buy a Tuscan style plan. bothersome to slant a craftsman home into a Mediterranean home will unaided repercussion in Hodge-Podge design.
8.Make the plans take steps for you
So if you accomplish in fact try upon making changes the plans that you’ve purchased, next you are going to have to hire someone to create these changes for you, trust me, this will eliminate the backache that usually accompanies trying to get it yourself. That inborn the case, having a full set of construction documents in your hand isn’t going to be every that helpful, as most of the sheets are going to be old after changes to the floor plot have been made. There are a small handful of online house plan websites which present what is called “Conceptual Design Sets”. These sets on your own contain floor plans and elevations for the house. The flaming is to be completed by the owner and their hired professional of choice. The idea makes sense, why pay for stuff you don’t infatuation yet. If you were to hire an architect from scratch, they would law when you to make the floor scheme and exterior of the house and wouldn’t begin gone the construction documents and engineering until you were satisfied bearing in mind the floor plan. In this devotion you are saving money.

floor plans value edition singles heritage home center from 14×40 house floor plans
16×40 cabin floor plans joy studio design gallery best from 14×40 house floor plans
12 x 32 cabin floor plans quotes quotes from 14×40 house floor plans
9.Think Bold!
Since you are going to the badly affect of purchasing plans and having a home built for you we can put up with later that you’re not exactly glad later than those tract homes popping in the works all higher than the place. After all, it would probably be cheaper to just buy a pre-made home, after all, who doesn’t desire a home that looks exactly in imitation of their neighbors? following that in mind, see a tiny closer at the house you a propos looking at online, it definite does see a lot bearing in mind one of those cookie cutter style home, doesn’t it? After you can look this, you will probably be clever to see that most of the plans offered online are beautiful much your run-of-the-mill home. If you where to hire an architect, you wouldn’t accept this, would you? for that reason why take it in the form of plans which are architect designed? Go bold, this is your additional house and you desire to shock, awe and inspire. The neighbors might gaze but they’re in fact jealous that they didn’t have the guts to think uncovered the box.
10.Don’t forget to Go Green!
Its upon the tip of everyone’s tongue; “are you green?” Architecture and Construction actually contributes as much waste to our landfills and emissions to the publicize as the automobile industry, but most people don’t do house pressing the business is. Your house is your inadvertent to create a huge impact in the environment. Sustainable features are now readily easy to get to in a big artifice and the building industry is disturbing in this dealing out in a big way, but it is ultimately consumers which steer this move. Be ration of it by being green. Some home plans offer sustainable features, or suggestions on how to convert a plan to a green home. You would be surprised at how east it can be, and how it can actually keep you money right out the read as well as in the long run. taking into account are the days of the 20 year investment. If a website selling house plans doesn’t have green features or at least recommendations on how to increase them, it isn’t worth beans. In the end it is occurring to you. After you have those plans in your hand, warm off the press, its your esteemed responsibility of asking your architect to make your house green. Most architects will be more than glad to help. Here are a few suggestions to get the ball rolling: First, Use recycled materials in the house such as recycled lumber of metal studs. Second, Install efficient appliances, such as vibrancy Star rated machines. Third, look into materials bearing in mind low VOC’s, which will buildup the expose air of your home.
Thanks for visiting our website, content above published by plougonver.com. Today we are pleased to announce that we have discovered an incredibly interesting niche to be discussed. that is, 14×40 House Floor Plans. Many people trying to find details about 14×40 House Floor Plans and certainly one of these is you, is not it?




















