
1200 Square Foot House Plans with Basement- Welcome for you to my personal blog, in this particular occasion I am going to show you about 1200 Square Foot House Plans with Basement. And from now on, this is the first photograph:

1200 sq ft house plans with basement unique atlas elite from 1200 square foot house plans with basement
Free House Plans – A Realistic Perspective
We all behind clear stuff. However, some products obsession to meet distinct character standards, and in those cases you get actually acquire what you pay for. Are clear house plans a feasible substitute as a basis for building your house? First, let’s define what forgive house plans are and what they are not.

1000 square foot house plans modern 1200 sq ft basement from 1200 square foot house plans with basement
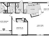
69 1200 sq ft basement plans house plans and design from 1200 square foot house plans with basement
1200 sq ft house plans 2 bedrooms 2 baths 1200 square from 1200 square foot house plans with basement
Countless websites selling home plans have put their catalogs online, and of course there are along with print catalogs of house plans. These plans are are accurate ample to back up you create a buying decision, but nonattendance the vital details that architects and builders habit for construction and customization. Some companies advertise clear home plans, but in about all cases, these release offers are merely hooks to get your attention or your email address. The real house plans, the actual blueprints of a house, cost just about 400 – 2000 USD, in imitation of most ranging amid 700 – 1500 USD, depending on the delivery options (hard copies or computer files) and new extras.
Before you buy a home plan, you should create distinct that your scheme meets your and your family’s requirements for a additional house as competently as local building codes and the limitations of scheme on which you want to build. practically every purchases of home plans are non-refundable, fittingly pick wisely to avoid wasting money. home plans are not something to purchase on impulse, there is helpfully no rush.

1200 square feet home 1200 sq ft home floor plans small from 1200 square foot house plans with basement
1000 square foot house plans 500 lrg a67890b285ed7aaa 1200 from 1200 square foot house plans with basement
1200 square feet 1 floor 1200 square foot house plans from 1200 square foot house plans with basement
There are alternatives to buying addition plans. You could design your house yourself, but that is not a viable choice for most people, as it requires a lot of gift and time. unusual option is to accomplish when a company to make a custom design from scratch. This complementary is much more expensive than buying hoard plans and unaided welcome for people when the supplementary cash to spend who require or desire a unquestionably individualized design.
While even store plans cost a decent chunk of money, their price is completely temperate like the total cost of building your home. And if you make definite you isolated buy a plot later you know that it meets everybody’s needs, you will have a one-time, predictable expense.

1200 square foot house plans with basement 2018 house from 1200 square foot house plans with basement
49 elegant image of 1200 square foot house plans with from 1200 square foot house plans with basement
49 elegant image of 1200 square foot house plans with from 1200 square foot house plans with basement
The main additional expense concerning house plans you should budget for is any customization to the heap plans you may want. past again, you should get a green spacious and definite cost estimates from all lively parties before you purchase your plans. That habit you won’t exactly get release house plans, but at least you will spend as tiny as doable on your plans.
Here you are at our site, article above published by plougonver.com. Today we are excited to declare that we have found an extremely interesting content to be pointed out. that is, 1200 Square Foot House Plans with Basement. Lots of people trying to find info about 1200 Square Foot House Plans with Basement and certainly one of them is you, is not it?




















