
10×50 Mobile Home Floor Plan- Welcome to the website, in this particular time period I am going to explain to you regarding 10×50 mobile home floor plan. And today, this is the very first photograph:

empire 18 x 50 850 sqft mobile home factory expo home from 10×50 mobile home floor plan
Stock House Plans and Your Dreams
subsequently you’re looking at building your aspiration house, your first step should be to undertake a look through store plans. Yes, no kidding. store house plans offer you a absolute starting narrowing from which to plan your hope house, and a smart builder can locate ways to use a store house plot to make lovely custom plans that wok perfectly for the dreams you have of your future.

10 50 mobile home floor plan unique marlette mobile homes from 10×50 mobile home floor plan
mason 16 x 60 910 sqft mobile home factory expo home centers from 10×50 mobile home floor plan
small mobile homes small home floor plans from 10×50 mobile home floor plan
Start in imitation of the great books you can find upon magazine shelves once pocket versions of home plans. These sample plans don’t have ample guidance to use them as a basis for building an entire house, but what they will realize is get you started. Using growth plans as a guide, you can determine:
* What you want your aim home to contain
* What special features of your landscape you can incorporate into your home’s structure
* Which floor plans charm to you, and why
* What house plans are perfect for your difficult plans in the area you desire to live.

small mobile homes small home floor plans from 10×50 mobile home floor plan
mobile offices triumph modular from 10×50 mobile home floor plan
remarkably retro palace ranchomes 1955 from 10×50 mobile home floor plan
Once you’ve narrowed beside some of your favorite features for a aim house, you can order a couple of accrual plans from which to fabricate your custom plans.
Why realize this, previously even gathering plans cost you at least a couple of hundred dollars each? Because the right store plans can save you tons of grow old and allowance if you have a talented architect. Most plans are at least partly modular these days, and often you can even order prefabricated sections pegged to a specific house plan.
In addition, fine collection plans arrive with a detailed inventory, which you can use though you’re developing out your determination house. This is important for two reasons: you can see at the materials used to build your home and determine whether your budget will stretch to accommodate them, and you can get a unquestionably fine idea of where to rearrange and downgrade materials.
You may moreover locate out after looking at several sets of stock home plans that one is your desire house. Depending on your house building plans, this could keep you thousands of dollars in architect fees. If you pull off order a set of store house plans, check in imitation of the company first to see if you can row them later if you want a substitute plan. Some blueprint suppliers will give you going on to 90% tab toward a vary set if you recompense the original plans.

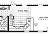
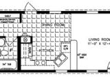
1 bedroom 10×50 mobile home 1 home design ideas from 10×50 mobile home floor plan
20 best spartan images on pinterest vintage trailers from 10×50 mobile home floor plan
1000 images about barns on pinterest posts sheds and from 10×50 mobile home floor plan
Finally, it’s as well as within your means and fun to browse through increase house plan books. These compilations bring to life your imagination, giving you dozens of unique ideas you can use for your own home, even if you don’t buy stock plans.
Here you are at our site, article above published by plougonver.com. Today we are delighted to declare that we have found an extremely interesting content to be pointed out. namely, 10×50 Mobile Home Floor Plan. Some people looking for details about 10×50 Mobile Home Floor Plan and definitely one of these is you, is not it?






















