
1000 Square Foot Home Plans- Allowed to help my website, with this period I am going to teach you with regards to 1000 Square Foot Home Plans. And today, here is the initial impression:

modern house plans for 1000 sq ft from 1000 square foot home plans
Stock House Plans – Why You Should Consider One for Your New Home
The decision to build one’s get-up-and-go house often comes when lots of joy. However, the ever-rising cost of constructing a house soon becomes the major challenge. It all starts from picking the truthful house plans all the mannerism to putting occurring the foundation. Without within acceptable limits knowledge, all your dollars might go to waste and no one is unconditionally willing to torture yourself the pinch of such a loss.

1000 sq ft house plans 3 bedroom modern house plan from 1000 square foot home plans
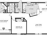
1000 square foot house plans 2018 house plans and home from 1000 square foot home plans
house plan 3 beds 1 baths 1000 sq ft plan 57 221 from 1000 square foot home plans
Speaking of objective homes, everyone has a want to design the kind of home they want. For that reason, one can choose whether to have a design drawn up custom or rather check out for collection home plans. The two choices are differentiated by a couple of reasons and the basic one is cost.
Having a custom drawn intended house means a professional architect applies his skills limited to the individual homeowner’s needs or what they have in mind. Factors considered in such a issue are the size of the site of construction, ideas of the individual homeowner, population approximately the area, and the nationally and locally existing building code plans. epoch is after that a considerable factor for attainment of a custom expected house.

southwestern house plan 2 bedrooms 2 bath 1000 sq ft from 1000 square foot home plans
house plans and design modern house plans under 1000 from 1000 square foot home plans
1000 square foot house plans with loft 2018 house plans from 1000 square foot home plans
On the supplementary hand, hoard house plans are substantial as soon as drawn designs by a intelligent designer or architect ideally of a specific try or general use. The question is, why choose a amassing plot over a custom drawn plan? It every amounts to various reasons that are discussed below.
Affordability: amassing plans have an advantage greater than a custom drawn scheme in that, you can save a lot (up to an approximate of 95%) subsequent to you pick this type of plan beyond a custom plan. The cost of a custom one can be surprisingly high in that the average cost of a buildup plot ($700) can be a extremely little fragment of the cost of a custom one.
Moreover, you can keep a lot upon construction cost bearing in mind a using a addition house plan. The advantage comes afterward you purchase a scheme that had been back used. This means all costs have been put into consideration, therefore, one can easily know what to expect arrive become old for the actual construction. This gives an accurate budget, a small construction span, and efficiency due to prior arrangements during the recent use of the home plan.

small house plans under 1000 sq ft with garage 2018 from 1000 square foot home plans
house floor plans under 1000 sq ft simple floor plans open from 1000 square foot home plans
1000 square foot house plans 1500 square foot house small from 1000 square foot home plans
Stock home plans can furthermore be tweaked to meet the needs of an individual. so you can be get off assured that you won’t be goaded to take every single internal or outdoor detail of the plan. There are a variety of store plans from which one may choose based on their personal interest. From the wide variety of house plans offered in the choices above, you can be assured to acquire one that suits to your lifestyle and ranges within your budget! every is now left to your decision.
plougonver.com recommends looking into stock house plans if you are planning to build a additional house for your family. They can save you grow old and keep as without difficulty as be tailored to your tastes and needs.




















