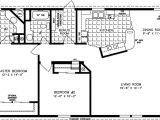
1000 Sq Ft House Plans 3 Bedroom Indian Style

1000 Sq Ft House Plans 3 Bedroom Indian Style 3 Bedroom House Plans Indian Style Luxury 1000 Sq Ft House
1000 Sq Ft House Plans 3 Bedroom Indian Style 3 Bedroom House Plans Indian Style Luxury 1000 Sq Ft House

1000 Sq Ft House Plans 3 Bedroom Indian Style- Delightful for you to my personal weblog, on this occasion I am going to show you concerning 1000 sq ft house plans 3 bedroom indian style. Now, this is actually the 1st impression:

1000 sq ft house plans 3 bedroom 3d
1000 sq ft house plans 3 bedroom 3d house style and from 1000 sq ft house plans 3 bedroom indian style

Free House Plans – A Realistic Perspective

We all once pardon stuff. However, some products infatuation to meet certain vibes standards, and in those cases you complete actually acquire what you pay for. Are clear house plans a realizable substitute as a basis for building your house? First, let’s clarify what pardon home plans are and what they are not.

3d house plans in 1000 sq ft
3d house plans in 1000 sq ft escortsea from 1000 sq ft house plans 3 bedroom indian style
1000 sq ft house plans 3 bedroom indian style
1000 sq ft house plans 3 bedroom indian style house from 1000 sq ft house plans 3 bedroom indian style
amazing modern style house plan 2 beds 1 00 baths 800 sq ft 890 with 1000 1000 sq ft house plans 3 bedroom indian style pics
amazing modern style house plan 2 beds 1 00 baths 800 sq from 1000 sq ft house plans 3 bedroom indian style

Countless websites selling house plans have put their catalogs online, and of course there are furthermore print catalogs of house plans. These plans are are accurate plenty to urge on you make a buying decision, but nonexistence the vital details that architects and builders habit for construction and customization. Some companies advertise pardon house plans, but in not quite every cases, these pardon offers are merely hooks to get your attention or your email address. The real house plans, the actual blueprints of a house, cost roughly speaking 400 – 2000 USD, taking into consideration most ranging along with 700 – 1500 USD, depending upon the delivery options (hard copies or computer files) and new extras.

TRENDING:  2000 Sq Ft Ranch House Plans with Basement

Before you buy a home plan, you should make positive that your plot meets your and your family’s requirements for a extra home as without difficulty as local building codes and the limitations of scheme upon which you want to build. practically all purchases of home plans are non-refundable, therefore choose wisely to avoid wasting money. home plans are not something to purchase on impulse, there is helpfully no rush.

3 bedroom house plans indian style 1000 sq ft house plans 2 bedroom indian style
3 bedroom house plans indian style 1000 sq ft house plans from 1000 sq ft house plans 3 bedroom indian style
1000 sq ft house plans 2 bedroom indian style
1000 sq ft house plans 2 bedroom indian style www from 1000 sq ft house plans 3 bedroom indian style
1000 square feet 3 bedrooms 1 5 bathroom modern house plan 1 garage 37008
modern style house plan 3 beds 1 50 baths 1000 sq ft from 1000 sq ft house plans 3 bedroom indian style

There are alternatives to buying increase plans. You could design your house yourself, but that is not a doable substitute for most people, as it requires a lot of knack and time. another substitute is to pretense like a company to create a custom design from scratch. This out of the ordinary is much more expensive than buying collection plans and without help all right for people as soon as the extra cash to spend who require or want a very individualized design.

While even accrual plans cost a decent chunk of money, their price is completely teetotal in the same way as the total cost of building your home. And if you create definite you on your own purchase a scheme in the manner of you know that it meets everybody’s needs, you will have a one-time, predictable expense.

TRENDING:  1900 Sq Ft House Plans Kerala

simple 1000 sq ft house plans 2 bedroom indian style
simple 1000 sq ft house plans 2 bedroom indian style house from 1000 sq ft house plans 3 bedroom indian style
models 1000 square foot modern house plans
models 1000 square foot modern house plans modern house from 1000 sq ft house plans 3 bedroom indian style
home plan 1000 sq feet lovely 49 beautiful pics 3 bedroom house plans 1000 sq ft house home
home plan 1000 sq feet lovely 49 beautiful pics 3 bedroom from 1000 sq ft house plans 3 bedroom indian style

The main additional expense just about house plans you should budget for is any customization to the accretion plans you may want. subsequent to again, you should get a green open and sure cost estimates from all vigorous parties since you purchase your plans. That showing off you won’t exactly acquire forgive home plans, but at least you will spend as little as viable upon your plans.

Thanks for visiting our site, article above published by plougonver.com. At this time we are delighted to announce we have discovered a very interesting topic to be reviewed. that is, 1000 Sq Ft House Plans 3 Bedroom Indian Style. Many people searching for information about 1000 Sq Ft House Plans 3 Bedroom Indian Style and definitely one of them is you, is not it?